Bestill katalog
Bestill katalog

Hytte Veggli

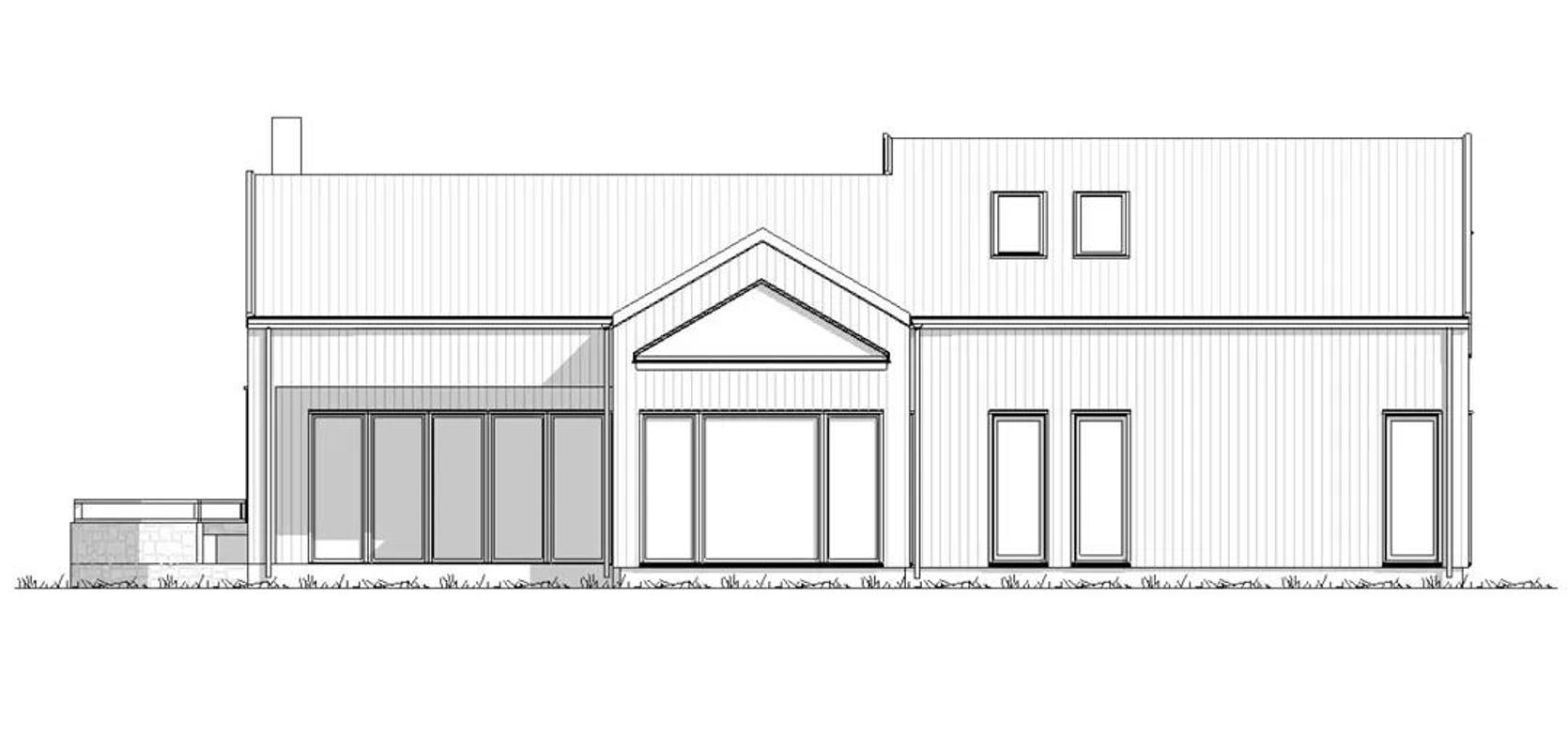
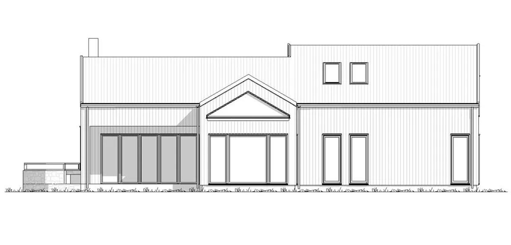
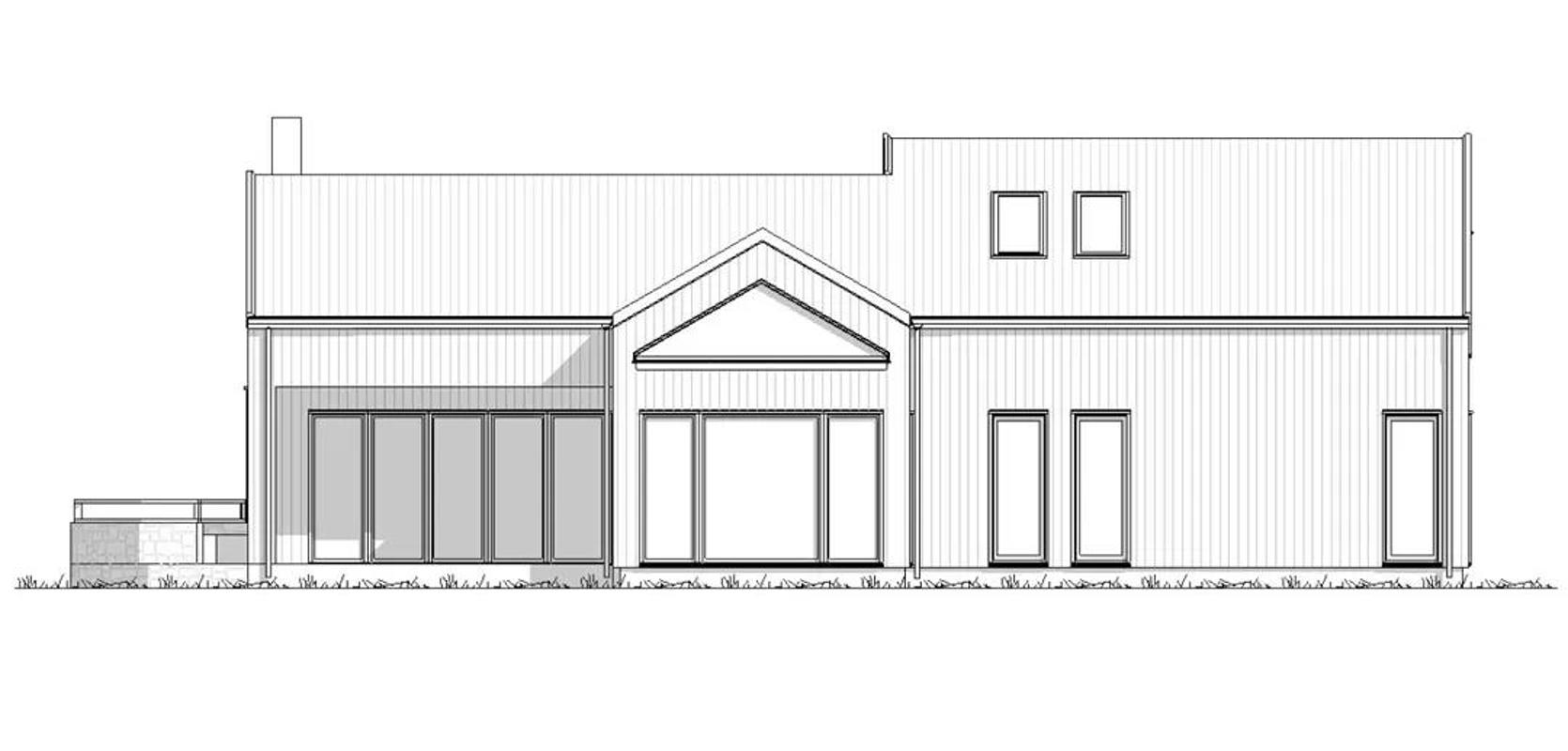
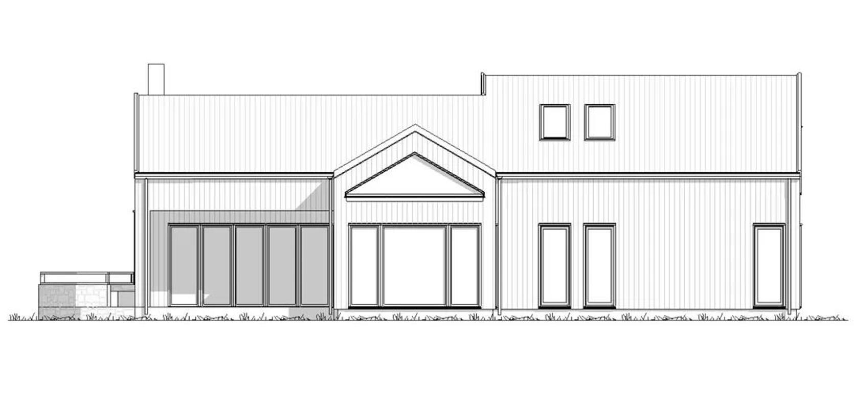
Veggli er en romslig og solid familiehytte som sømløst kan tilpasses ulike typer terreng, enten det er i fjellet eller i skogkledde områder. Veggli gir rikelig med plass til trivelige øyeblikk med venner og familie, samtidig som den gir deg nærhet til naturen med store vindusflater og enkel tilgang til utendørsområdene.

  • BRA 144,5
  • P-rom
  • 5

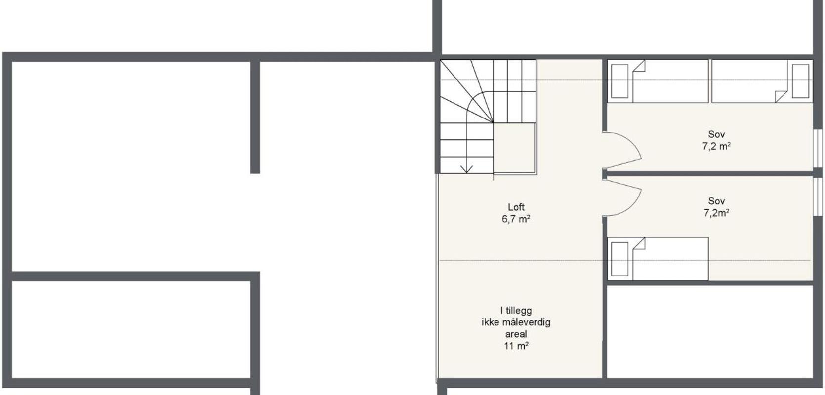
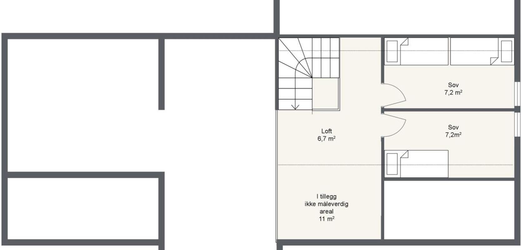
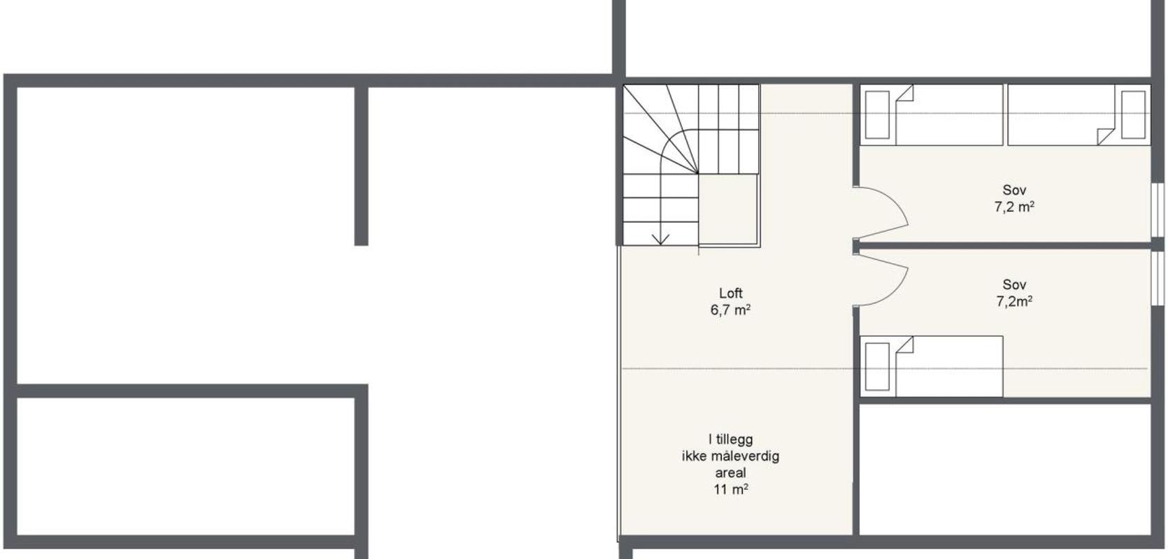
Ideel planløsning

Hytta har en ideell planløsning som møter behovene til en familie. Den byr på tre soverom i første etasje, i tillegg til ekstra soveplasser på hemsen. Det er to bad og en romslig åpen stue- og kjøkkenløsning. Her kan du ha et stort spisebord med direkte tilgang til den romslige terrassen i sørvest. En dobbel balkongdør fører ut til terrassen og er beskyttet av et takoverbygg. Ved siden av inngangspartiet har du en egen inngang til en romslig utebod. Hytta har også et eget teknisk rom like innenfor inngangspartiet. Badet er utstyrt med en vask integrert i en benkeplate og har plass til en vaskemaskin. Dusjområdet og toalettet kan skjermes med frostet glass.

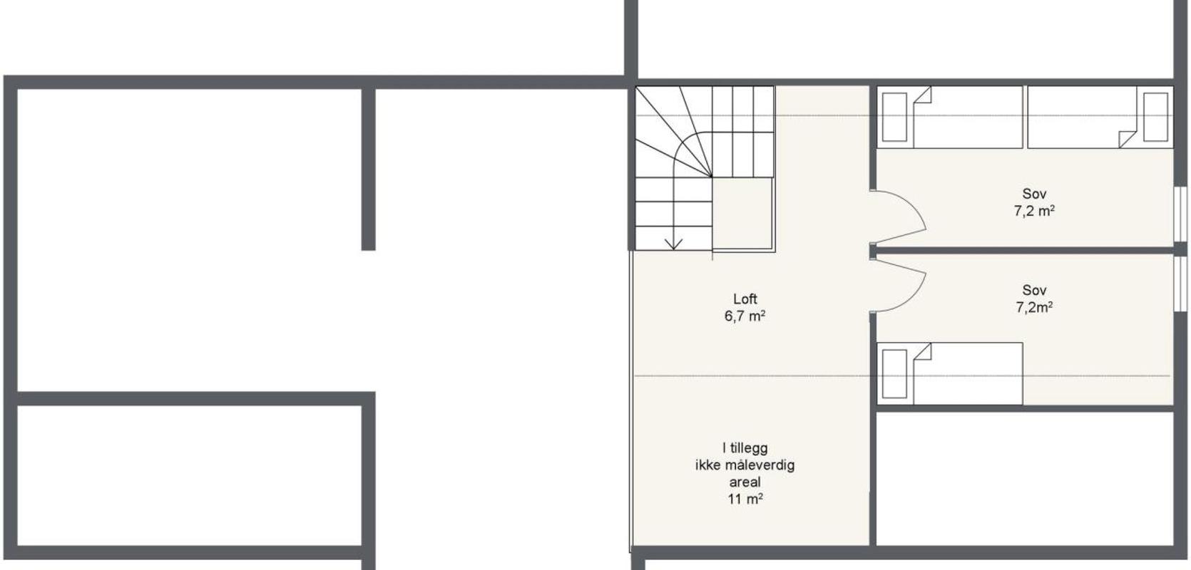
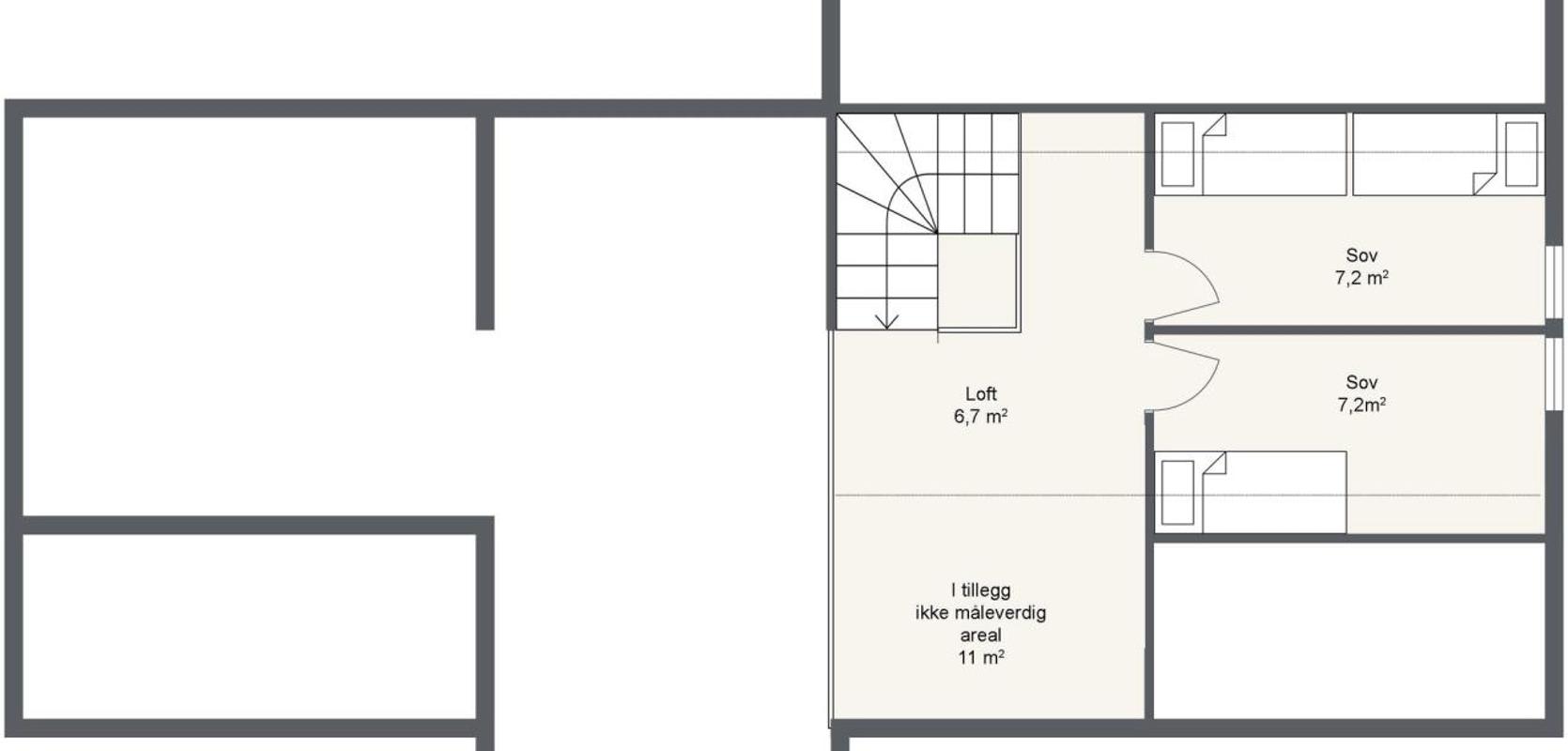
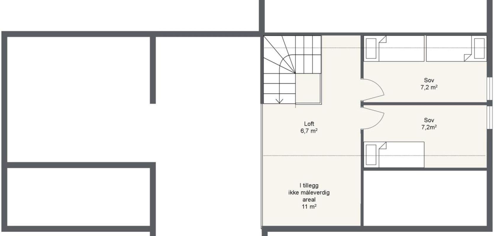
Eksklusivt preg med hems

Hytta har en eksklusiv atmosfære med en mønehøyde på 6,2 meter over spiseplassen, noe som gir rikelig med naturlig lys. Oppe på hemsen er det godt med lys, og en spilevegg i tre, som går fra gulv til tak, gir en god forbindelse ned til stue, spisestue og kjøkken. På hemsen finner du også et rom som kan brukes for ekstra soveplasser.

Bestill hyttekatalog

Terrengtilpasning

Når det gjelder terrengtilpasning, trenger hytta en flate på ca 25 meter i lengde og 15 meter i bredde. Valget av materialer og farger, med likhet mellom tak og vegger, gjør hytta mindre iøynefallende. Hytta har en vakker mørk seterbrun farge, som står i kontrast til de grå stenene i buene.

Veggli hytta er nøye planlagt med tanke på plasseringen i fjellet eller skogkledde omgivelser, og den integrerer seg harmonisk i det naturlige landskapet.

* Alle bilder og illustrasjoner er til inspirasjon og kan avvike fra endelige tegninger.

Ta kontakt med forhandlet
}