Bestill katalog
Bestill katalog

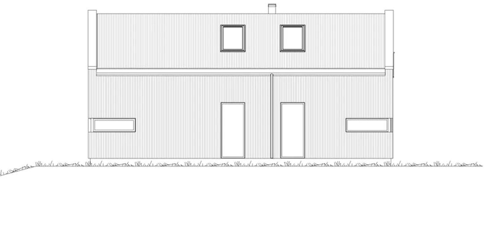
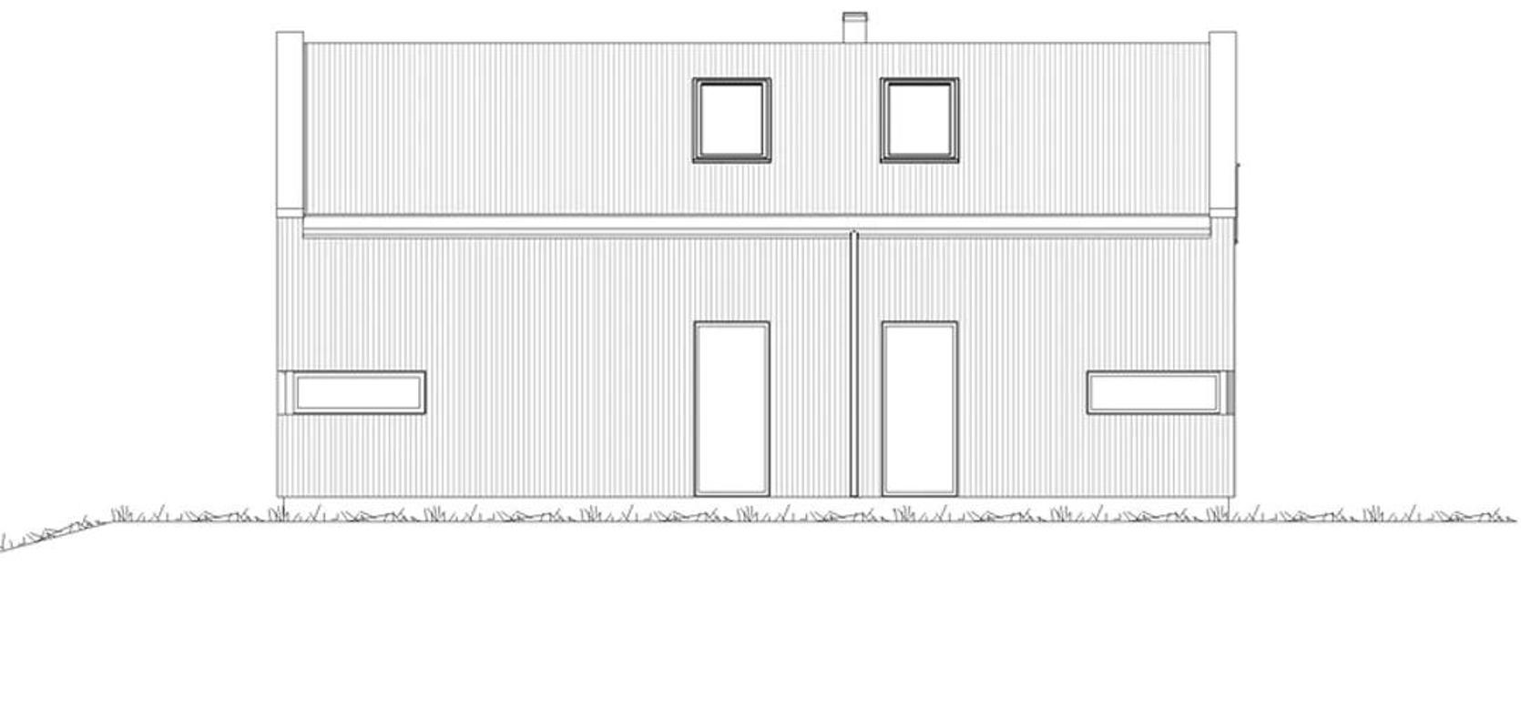
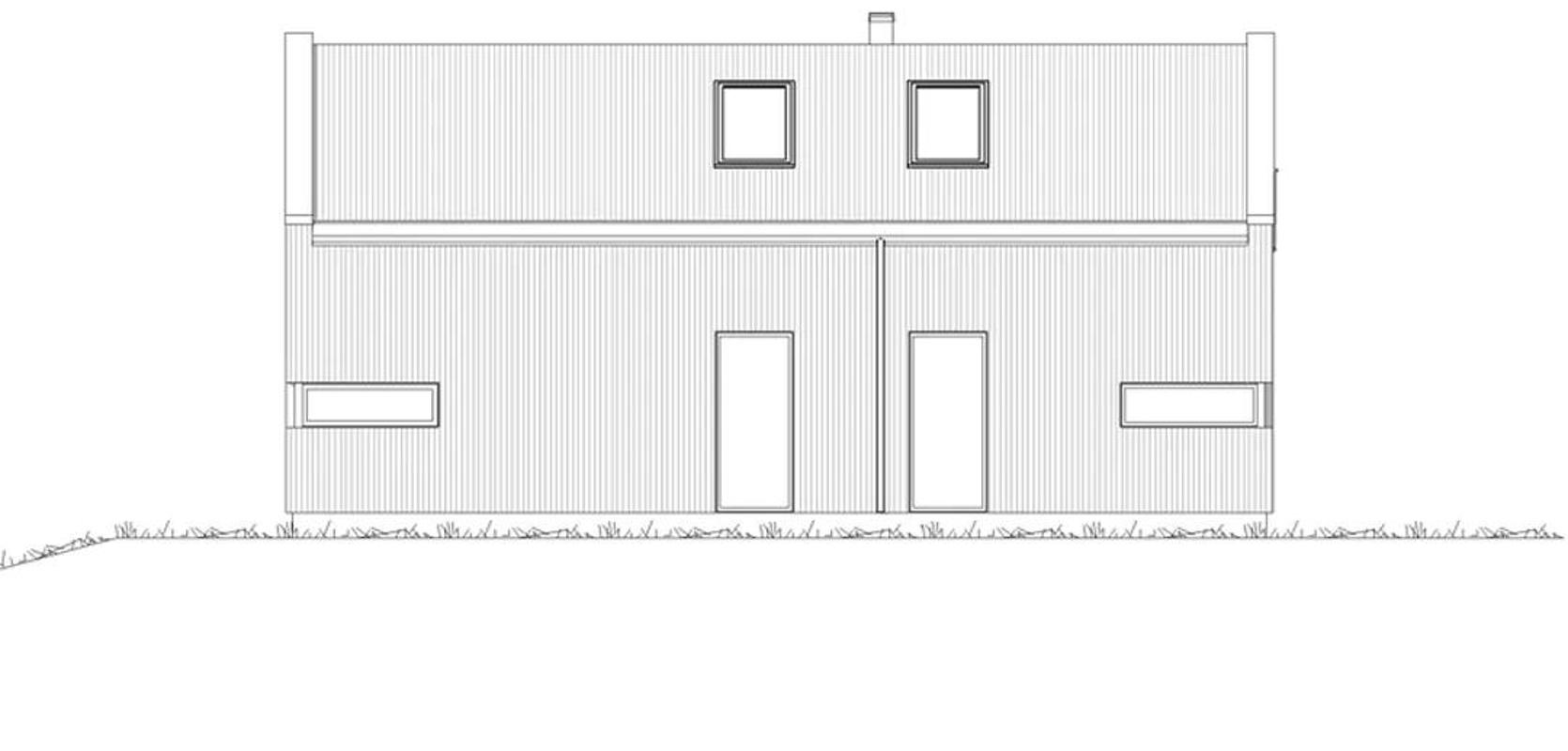
Hytte Gimre

Gimre er en moderne og romslig atriumhytte med smart planløsning. Hytta er delt inn i to soner, en privat sone med soverom og baderom, og en sosial sone med stue og kjøkken. Mellom de to sonene finner man en skjermet uteplass som fungerer som en forlengelse av boarealet. Uteplassen er perfekt for gode stunder med familie og venner til utendørsaktiviteter og avslapning.

  • BRA 108,5
  • P-rom
  • 3

Romslig entre og praktiske løsninger

Gimre hytta er nøye planlagt med tanke på funksjonalitet, tilgjengelighet og praktiske løsninger.

Hovedinngang og entre: Hytta har to innganger. Hovedinngangen er overbygget, og du kommer inn til en romslig entre med god plass til garderobeskap, samt fin utsikt til atrium og uteplassen.

Biinngang og kombinert bod/vaskerom: Biinngangen fører til en kombinert bod/vaskerom og teknisk utstyr. Dette gir deg muligheten til å holde skitne eller våte klær og utstyr utenfor hoveddelen av hytta.

Private sonen: Tre soverom og to bad i den private sonen gir god plass for beboere og eventuelle gjester. Plasseringen av hovedsoverommet med utsikt mot sør og øst gir deg muligheten til å nyte naturlig lys og det vakre landskapet. To mindre soverom vender med øst.

Gjestebad: Det er flott å ha et gjestebad som er lett tilgjengelig via biinngangen. Dette gjør det enkelt for gjester å bruke badet uten å måtte gå gjennom private soner av hytta.

Slipp naturen inn

Fra stuen rettes fokuset mot landskapet og naturen gjennom store vinduer i Nord-vest. Dette gir ikke bare rikelig naturlig lys inn i stuen, men gir også beboerne muligheten til å nyte den vakre naturen utenfor. Store vinduer har også en tendens til å åpne opp rommet og skape en følelse av sammenheng med omgivelsene.

Ildsted som sentralt punkt:  Ildstedet er synlig fra mellomgangen, allrommet og uteplassen, noe som gir en følelse av samhørighet mellom disse områdene. Ildsteder er ikke bare praktiske varmekilder, men også estetisk tiltalende elementer som tilfører atmosfære og koselig stemning til rommet.

Bestill hyttekatalog

Romslig hems

Hemsen er en flott måte å maksimere bruken av tilgjengelig plass. Ved å tilby ekstra soveplasser og en ekstra stue gir den en allsidig plattform for forskjellige aktiviteter. Dette kan være spesielt verdifullt når det kommer gjester på besøk eller når beboerne ønsker å ha litt ekstra plass.

Det er en trappestige opp til hems i nær tilknytning fra allrom og mellomgang. Å ha denne plasseringen sentralt i hytta kan også gi en følelse av sammenheng med resten av boarealet.

Takvinduene og glassrekkverket på hemsen er flotte designtrekk som bidrar til å holde rommet lyst og luftig. Naturlig lys som strømmer inn gjennom takvinduene, kan gi en flott atmosfære, og glassrekkverket sikrer at lyset også kan nå ned til lavere nivåer av hytta.

* Alle bilder og illustrasjoner er til inspirasjon og kan avvike fra endelige tegninger.

Ta kontakt med forhandlet
}