Bestill katalog
Bestill katalog

Holmen - hus med praktiske løsninger

Mesterhus Holmen er et funksjonelt hus tilrettelagt for et enklere liv. Her finner du et hus hus med praktisk og gjennomtenkt planløsning.

  • BRA 126,4 m²
  • P-rom
  • 3

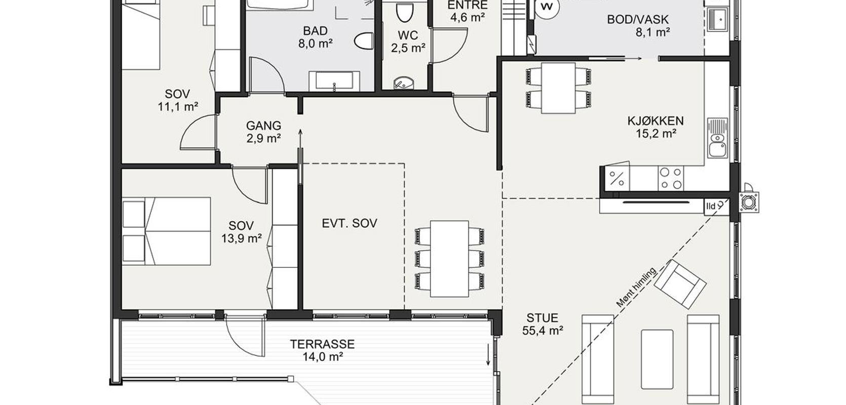
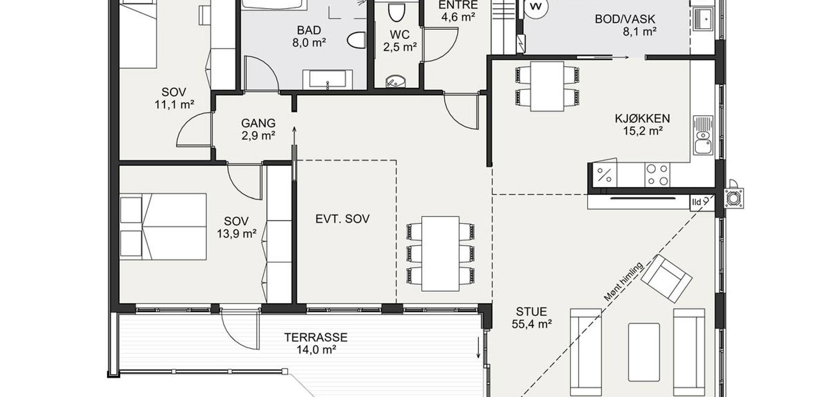
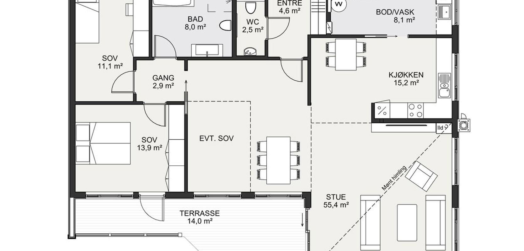
Holmen er en praktisk enebolig hvor alt er på ett plan. Boligen har en smart planløsning som deler huset inn i to soner. Når du kommer inn i entreen er det et gjestetoalett, som også er svært praktisk med små barn. Når du kommer videre inn finner du en privat sone med bad og to soverom til høyre, og det er mulig å bruke en del av oppholdsrommet til et tredje soverom. Det største soverommet har også direkte utgang til terrassen.

Praktisk vaskerom med egen inngang
På andre siden av huset finner du stue og kjøkken. Kjøkkenet er romslig med vinkelløsning og er praktisk skjermet med vegg mot stue. Utenfor kjøkkenet finner du et eget vaskerom som har egen inngang fra uteområdet. Svært praktisk spesielt når man kommer hjem med vått og grisete tøy eller har hund. Det er store vinduer på alle veggene og stor skyvedør ut til terrassen. Vinkelløsningen gir et lunt og trivelig uterom.

Eneboligen Holmen er tegnet av arkitekt Trine Tellefsen hos MG Arkitekter.

Bestill katalog