Bestill katalog
Bestill katalog

Form 3.0 – effektivt og moderne hus

Konseptet bak Form 3.0 er videre utvikling av Form serien som er små hus med effektiv planløsning og et skarpt arkitektonisk utrykk.

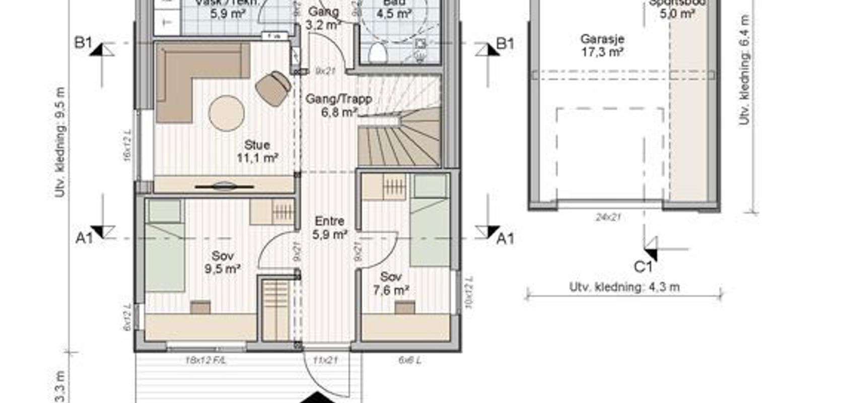
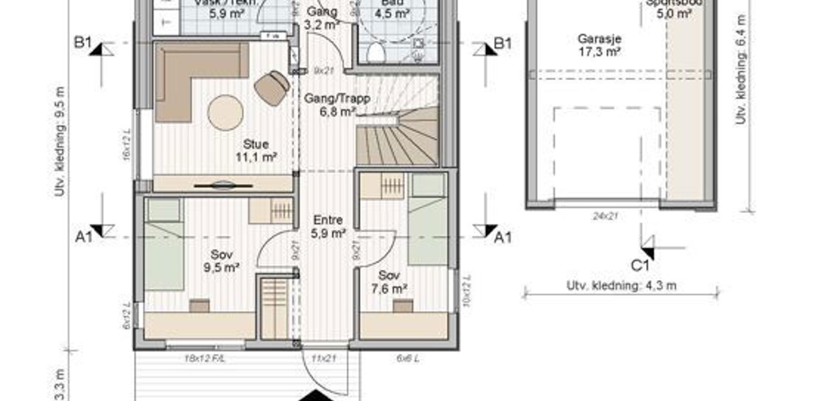
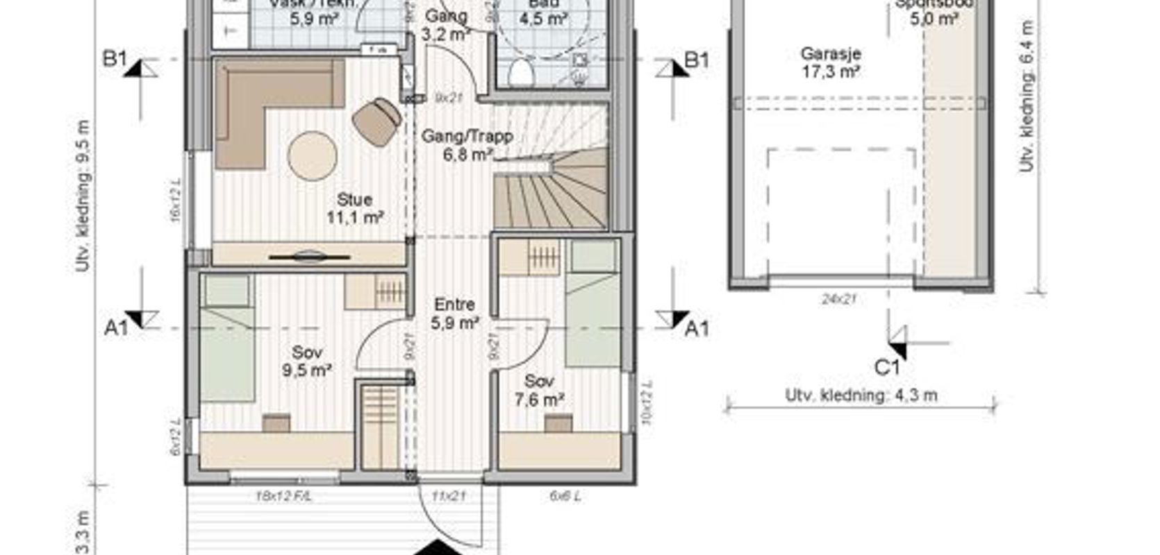
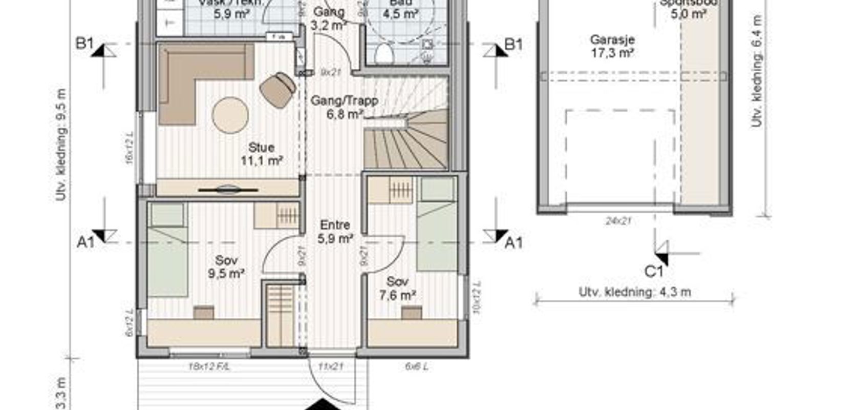
  • BRA 120 m²
  • P-rom
  • 3

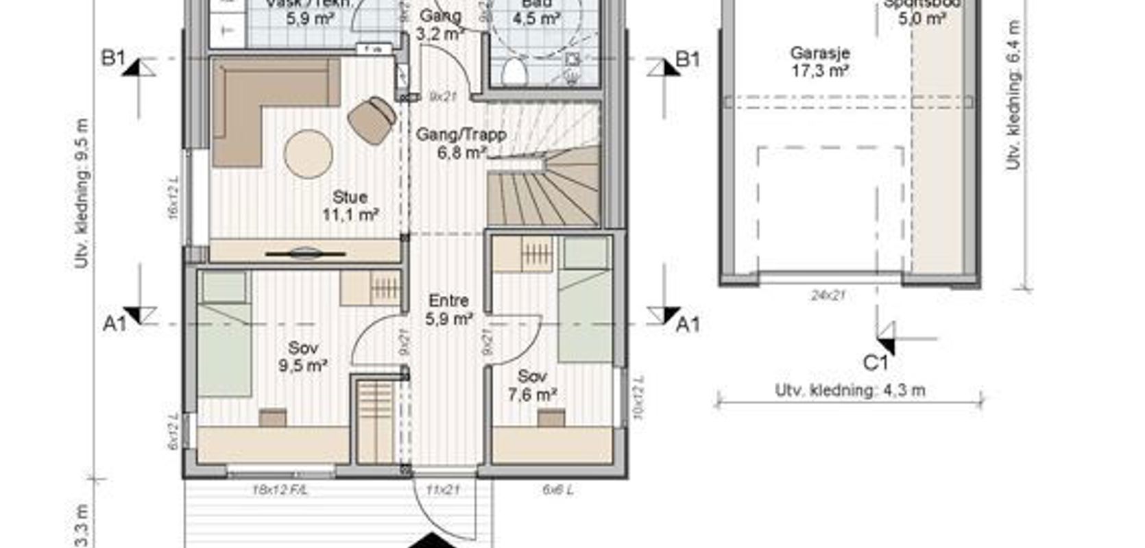
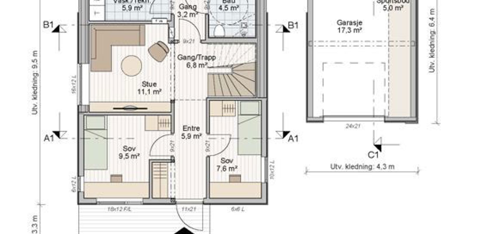
Form 3.0 har på sine 120m2 boligareal 3 soverom, 2 stuer, 1-2 bad og er veldig arealeffektiv uten at det går på bekostning av bokvaliteten. Mastersoverom har et eget walk in closet, tilgang til wc/bad og direkte kontakt med hage på bakside gjennom terrassedør. Soverommet har god takhøyde og godt med lys.

Soverom på inngangsparti er romslige med plass til det nødvendige, det er lett tilgang til både ekstra stue, bad og trapp til 2 etg fra soverommene.

Planløsningen har også gode lagringsmuligheter og egen bi inngang med vaskerom.

Stue/kjøkken er et godt rom med god takhøyde og perfekt for tomt med utsikt.

Form 3.0 er en enebolig med u-etg. og skrått terreng, men kan lett lages om til rekkehus, tomannsbolig eller på flatt terreng.

Fasadeutrykket er arkitektonisk skarpt med gjenkjennelig utrykk til resten av Form serien, men samtidig særegenheter med saltak og store skråvinduer.

Huset er perfekt til førstegangs etablerte og familier med 1-2 barn. Det skal være prisgunstig iht. til marked, men samtidig arkitektonisk spennende og mye innhold på få kvadratmeter.

Bestill katalog